安詩曼電器
手機:133-6050-3273
微信:133-6050-3273
地址:廣東深圳坪山區青松西路8號鴻合科技園

已經進入6月中旬,眼看梅雨季越來越近,是不是又想起了被梅雨季支配的恐懼?比如……曬不干的內褲,黏答答的被子,一個月都見不到艷陽天!就說被子吧,不僅是床上的,哪怕是儲藏在衣柜里的被子散發著一股異味,甚至黏黏的,想想就惡心。而這罪魁禍首就梅雨季!濕度太高,還整天陰雨綿綿
了解詳情
靈芝是一種名貴的中草藥,具有補氣安神、止咳平喘、提高免疫力,延年益壽的功效。靈芝入藥需要干燥,如果不干燥的話,很容易受潮發霉。以前靈芝以野生為主,在深山老林里面,要尋找很困難,所以被人叫仙草,現在靈芝實現了人工種植,不在稀少了。一般的滋補用藥都可以用上了。靈芝采收來后,用小刀削凈靈芝菌柄基部的雜質,...
了解詳情
炕房專用潮煙機,煙葉烘烤房回潮機技術動態又到一年豐收季,煙葉采收烘烤忙;烘烤煙葉,是煙葉整個制作流程中非常重要的一個環節;煙葉烤的好,價格自然高,煙葉烤不好,煙葉種植戶一年的辛苦勞動就白費了。煙葉是分等級的,等級越高的煙葉價值也就越高,而判斷煙葉等級其中的一個標準就是煙葉的完整度。煙葉經過烘烤之后必...
了解詳情
梅雨季藥品倉庫如何控濕:藥這個東西沒人喜歡,但是你又離不了,畢竟人吃五谷雜糧的,都要生病,生病了是抗不過去的,只有吃藥才能把身體恢復健康。很多人感冒發燒后,去藥店買了藥回來,沒有吃完就好了,于是就將剩下的藥放
了解詳情
產品介紹Productintroductio產品實拍Theproductwill在火鍋店、燒烤店、麻辣燙、串串店等經常會看到風幕柜、冷柜、菜臺、冰臺上擺放了很多不同的食材,適宜這些食材保存的溫濕度條件是不一樣的;因此,很多火鍋店、燒烤店、麻辣燙、串串店等店鋪經營者為了讓所有食材都能夠保持新鮮在風幕柜...
了解詳情
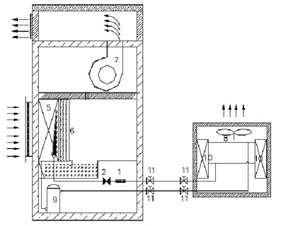
溫濕度獨立控制空調系統中,需要新風處理機組提供干燥的室外新風,以滿足排濕、排CO2、排味和提供新鮮空氣的需求。前言已闡述了現有的低溫露點除濕的熱濕聯合處理方式所帶來的問題,如何采用其他的處理方式排除室內的余濕,如何處理出非露點的送風參數,如何實現對新風有效的濕度控制是新風處理機組所面臨的關鍵問題。采...
了解詳情
工業的調溫功能工業上用的除濕機分為調溫式和不調溫式的兩種。現在我們就說說這種調溫式除濕機的功能。工業上用的調溫除濕機有三種類型,一種是通過降溫除濕的,一種是通過升溫除濕的,還有一種是通過調濕除濕的除濕機。先說升溫式的除濕機,這種除濕機里面的水冷式冷凝器不參與工作,只是使用風冷式的冷凝器。當室內的濕空...
了解詳情
調溫調濕機溫濕度自動控制技術介紹:調溫調濕機,又叫恒溫恒濕機,或者是恒溫恒濕空調,恒溫恒濕機組,恒溫恒濕系統,名稱有很多,但是功能只有一個,那就是對生產環境的溫度和濕度進行控制,確保溫濕度不會變化,或者是變化不大。這種設備可以制冷也可以制熱,可以加濕也可以除濕,簡單的說就是集中了除濕機、加濕機以及空...
了解詳情
前不久,北海艦隊某潛艇基地機關工作組對駐泊的潛艇進行裝備保養檢查。檢查人員發現,個別艇隊艙室的溫濕度已略微超過標準值,而艇員卻沒有打開除濕機對艙室進行除濕。詢問原因,值日員劉小棚回答得理直氣壯:“現在艙外陽光明媚,根本不需開除濕機,再說艇上空調功率很大,停在碼頭運
了解詳情
(一)冷熱適中、熱量豐富。溫州常年平均氣溫在18℃左右,這是人類活動最為適宜的氣候條件。根據溫州氣象臺歷年各月逐日逐時氣溫記錄及人的冷熱舒適要求,溫暖舒適期(10-28℃)每年長達9個月,出現時數可達6500小時,占全年總時數的74%。全年>0℃活動積溫約6500℃,無霜
了解詳情
每年的六七月份,我國廣大的南方地區就進入了潮濕的梅雨季節,有些地方空氣的相對濕度高達80%~100%。高濕度環境對高精度的鋼琴樂器來說,會造成很多不良影響,需要我們格外注意。鋼琴的制作材料主要是木材,其零部件大多是木制的,而且精度非常高,這個時候,影響鋼琴琴鍵不起這屬于最常見的現象。因為潮濕的氣候常...
了解詳情
溫室效應,高溫高濕日趨嚴重,必備除濕設備我國國土遼闊,從南到北有熱帶、亞熱帶、暖溫帶、溫帶、寒溫帶幾種不同的氣候帶。南北氣候變化大,南方降水多,空氣潮濕,除濕設備大有作為。長江流域處于梅雨季節時,陰雨連綿,空
了解詳情
蔬菜大棚內要保持恒溫環境,所以平常都是處于相對密封的狀態,空氣濕度也是經常大于室外的。但是過于潮濕的環境并不利于某些作物的生長,因此溫室內的空氣濕度管理主要就是除濕。大棚內的溫度和濕度控制,一直是我們隨時關注的問題。現在呢我就跟大家討論討論如何解決大棚的除濕問題。在棚里脫氧劑應該保持溫度的恒
了解詳情
每年的6月,7月都是梅雨天,今年入夏以來,降水量十分充足,全國大部分地區出現多輪強降雨,漫長的梅雨季節到了。來自氣象專家的解釋,今年,副熱帶高壓偏弱,造成西南暖濕氣流沿著云貴高原源源不斷向長江中下游輸送水汽,梅雨季北方南下的冷空氣也相對偏強一些,形成一道超強梅雨帶,
了解詳情
溫室大棚除濕機,溫室大棚排濕快控濕準新聞資訊:眾所周知,溫室大棚在現代化農業生產中的應用是極為廣泛的,特別是在瓜果蔬菜、花卉苗木、食用菌、中草藥種植以及農業實驗研究等方面上普遍都會用到溫室大棚;而對大多數栽培作物來說,溫室大棚內無論是低溫高濕、還是高溫高濕都會造成一些病害發生和蔓延;因此,合理控制溫...
了解詳情
最近幾年,人們生活水平的改進,顯著的一個改變就是家具銷量的繼續攀升。家具可分為實用型實木家具、保值收藏類純紅木仿古家具、現代元素稠密的金屬制品家具、布制家具及皮革家具。前兩類家具都需要上漆進行家具外表的維護處理。而漆藝的工藝水平,決議了產品的外觀、價格、運用壽命等商場競爭力要素。仿古硬質紅木家具,最...
了解詳情
調溫型除濕機具有自動調控溫濕度的功能,還可以制冷除濕,特別適合用于變化比較大的高溫高濕的環境,能有效降低室內濕度,還可以自動檢測濕度,帶來了很大的便利。1.調溫型除濕機具有多種功能,能適應變化較大的高溫高濕的環境。調溫型除濕機能自動調溫、降溫除濕功能,調溫除濕機集除濕,制冷功效于一身,且制冷能力可調...
了解詳情
調溫型除濕機適合高溫環境中使用,在一些溫度變化比較大,溫度比較高的場合下,使用調溫型除濕機的話,對于降低環境內溫度和濕度會有比較顯著和良好的效果,給我們的生產和工作帶來的極大的方便。調溫型除濕機的濕裝置由除濕蛋和承座組成。所謂除
了解詳情
現在有很多蔬菜、瓜果、中藥材、食用菌以及花卉、苗木等都可以通過溫室大棚來進行種植栽培。有了溫室大棚之后,確實是可以通過人為控制室內環境的方式反季節供應,這樣的話,即使在冬季也可以吃上很多種類的蔬菜、水果等農作物,比原來有了更多的選擇!不過大棚種植并不是說一勞永逸的,也依然需要注意管理,特別是濕度的管...
了解詳情
現已是3月底,您熟悉的好友“梅雨季節”上線了!對沒錯,這種天氣最令人討厭,到處都潮濕。那么我們該如何做好防潮工作呢?接下來這些小竅門你要學一學~梅雨季節防潮竅門開窗有道,巧用家電開窗通風有講究,陰天時,開窗時間最好在每天空氣濕度比較低的下午,太陽好的時候就打開所有門窗透透氣。除此之外,空調有個除濕功...
了解詳情